Điều trái ngược mà mọi người đều nhận thấy đó là xa hội càng phát triển thì diện tích đất càng thu hẹp. Và để xây dựng một mẫu kiến trúc biệt thự đẹp có đầy đủ công năng, có sân vườn cũng như chỗ để xe luôn là yêu cầu khiến các kiến trúc sư đau đầu. Nhưng cái khó ló cái khôn các kiến trúc sư đã biết cách tiết kiệm đất nhưng vẫn có đầy đủ các không gian mà vẫn tạo được vẻ hài hoà. Để hiểu rõ hơn cách làm đó của các kiến trúc sư chúng ta cùng đi khám phá 3 mẫu nhà cấp 4 có tầng hầm đẹp và tiện ích ngay sau đây.
Thăm quan mẫu nhà cấp 4 có tầng hầm đẹp diện tích 10,5x13m tại Phú Thọ
Mẫu thiết kế nhà cấp 4 có tầng hầm mà quý vị theo dõi ngay sau đây chính là mái ấm của gia đình ông Trọng Vệ với kinh phí xây dựng 700-800 triệu. Mẫu bản vẽ xây nhà cấp 4 có tầng hầm này được xây dựng theo phong cách hiện đại mang đến vẻ tươi mới cho gia chủ.

Phối cảnh mẫu nhà cấp 4 có tầng hầm tiện lợi
Phối cảnh bản thiết kế mẫu nhà cấp 4 đẹp có tầng hầm hiện lên với các chi tiết trang trí đơn giản kết hợp với tone màu trắng chủ đạo mang đến vẻ bình dị, tinh khiết cho ngôi nhà khi nhìn vào. Việc sử dụng tone màu trắng cũng được rất chủ ý bởi chỉ cần 1 vết bẩn nhỏ hay 1 giọt nước bắn vào cũng bị nhận ra 1 cách dễ dàng. Chính vì vậy khi lựa chọn tone màu trắng chủ đạo chúng tôi đã sử dụng đá để ốp phần chân đến để tránh những hiện tượng đó.
Ngoài ra phần mái nhà được chúng tôi thiết kế dạng mái thái xây thu hồi kết hợp với vỉ kèo sau đó dán ngói. Điều này mang đến cảm giác mát hơn so với thiết kế mái bằng. Hơn nữa trong phần mái thái này chúng tôi sử dụng ngói màu xanh đen thay vì màu đỏ như truyền thống mang tới điểm khác biệt để thu hút ánh nhìn của người đối diện.

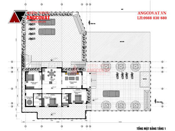
Mặt bằng mẫu nhà cấp 4 có tầng hầm đẹp - tiện ích
Trong mẫu thiết kế nhà cấp 4 có tầng hầm 100m2 này các kiến trúc sư đã bố trí không gian để xe bên dưới để tiết kiệm diện tích đất để tạo cảnh quan cho sân vườn. Tầng hầm có diện tích 64m2 với sức chứa 2 ô tô và cả xe máy nữa. Không gian tầng hầm rộng và thoáng đảm bảo xe ra vào 1 cách dễ dàng, thuận tiện cho gia chủ. Có thể thấy tầng hầm không những giải quyết vấn đề chỗ để xe mà còn tạo cho ngôi nhà vẻ chắc chắn hơn.
Thiết kế tầng hầm - vị cứu tinh của những ngôi nhà vườn cấp 4 mặt tiền 10m
Mẫu thiết kế nhà cấp 4 một tầng có tầng hầm mặt tiền 10m tạo ấn tượng với người nhìn với sự vững chắc và kiên cố qua những cột trụ, hệ đá ốp từ phần chân tường. Bên cạnh đó là những khối chân đế được ốp bằng đá thẻ nhỏ màu ghi vàng chạy xuyên suốt đến các mảng tường của phần tầng hầm.

Thiết kế bản vẽ mẫu nhà cấp 4 có tầng hầm vừa đẹp vừa sang
Nổi bật trên hình khối vững chắc đó là hệ thống mái thái bắt mắt của mẫu thiết kế nhà cấp 4 có tầng hầm. Mái nhà được thiết kế xây thu hồi vỉ kèo sau đó lợp ngói Cpac Thái màu xám tạo nên nét trầm chongoi nhà nhưng vẫn gợi sự chắc chắn của mái nhà. Hơn nữa phần mái còn có các con sơn để đỡ lại càng tôn lên vẻ bề thế của hệ thống mái thái.
Để tô điểm thêm cho thiết kế các kiến trúc sư bố trí sân vườn bắt mắt kết hợp với các bồn hoa, chậu hoa dọc lối lên xuống cũng như tại hành lang quanh cửa sổ. Điều này tạo cho ngôi nhà vẻ sang trọng gần gũi với thiên nhiên.

Bản vẽ chi tiết mặt bằng nhà cấp 4 có tầng hầm
Tầng hầm trong mẫu thiết kế nhà cấp 4 120m2 này nằm ở độ sau 3,9m so với tầng 1. Không gian tầng hầm rất rộng và có thể chứa cùng lúc 2 ô tô, 5 xe máy mà các xe vẫn có thể ra vào 1 cách linh hoạt và thuận tiện. Cùng với không gian sân trước cũng có thể dùng làm nơi để xe thì gia chủ hoàn toàn yên tâm về không gian để xe của khách nếu phải đón nhiều vị khách cùng 1 lúc. Đây cũng chính là lí do vì sao tầng hầm trở thành cứu cánh cho những thiết kế nhà vườn cấp 4.
Mẫu thiết kế nhà cấp 4 có tầng hầm tiện lợi kích thước 10x12m
Mẫu nhà vườn mái thái 1 tầng 120m2 hiện lên với phong cách kiến trúc truyền thống giống như kiểu nhà sàn vậy. Tầng 1 tđược làm cao hơn mặt bằng đất và lối lên cũng là bậc cấp nhưng đã được cách điệu thành cầu thang nhỏ nên rất giống kiểu nhà sàn truyền thống.

Mẫu nhà cấp 4 có tầng hầm tiện lợi phong cách mái thái
Mẫu nhà cấp 4 có tầng tầng đẹp hiện lên với thiết kế mái thái được thiết kế tỉ mỉ công phu tôn lên được vẻ đẹp của không gian thiên nhiên xung quanh. Sử dụng mái thái ngôi nhà trở nên cao ráo, thoáng đãng hơn và toát được vẻ sang trọng của biệt thự vườn. Trên phần mái thái được chúng tôi sử dụng ngói đỏ làm điểm nhấn nổi bật trên tone màu chủ đạo là màu nâu nhạt.
Kết hợp màu nâu nhạt chủ đạo là gam màu trắng trang nhã để trang trí tại các cột đõ cũng như phần bao quanh khung cửa của ngôi nhà. Hệ thống cửa của mẫu biệt thự 1 tầng sân vườn có tầng hầm được sử dụng là cửa kính cường lực cao cấp.

Mặt bằng chi tiết mẫu thiết kế nhà cấp 4 có tầng hầm
Không gian tầng hầm được bố trí nằm bên dưới 2 phòng ngủ của mẫu nhà cấp 4 diện tích 120m2. Tầng hầm với sức chưa cả ô tô và xe máy sẽ tạo điều kiện di chuyển thuận tiện cho gia chủ. Hơn nữa không gian để xe được bố trí trong hầm sẽ không làm phá vỡ bố cục cảnh quan sân vườn cũng như kiến trúc của ngôi nhà. Chính vì vậy mà ngày nay các mẫu nhà có tầng hầm đang rất được ưa chuộng.
Trên đây là 3 mẫu thiết kế nhà cấp 4 có tầng hầm đẹp, tiện lợi để quý vị tham khảo. Những mẫu biệt thự 1 tầng có tầng hầm này không chỉ có công năng sử dụng hoàn hảo mà còn có không gian sân vườn rộng nhờ biết cách bố trí không gian để xe trong lòng đất. Nếu bạn đang muốn sở hữu một thiết kế đẹp như này thì hãy liện hệ ngay với chúng tôi nhé. Bên cạnh 3 mẫu nhà cấp 4 có tầng hầm đẹp này bạn có thể tham khảo thêm mẫu thiết kế biệt thự 10x12m để có thêm ý tưởng cho mái ấm của mình nhé.
Liên hệ với chúng tôi để được giải đáp thắc mắc và tư vấn nhé Hotline: 0988 030 680
Nguồn: http://kinhnghiemxaynha.info/Chiem-nguong-3-mau-thiet-ke-nha-cap-4-co-tang-ham-vua-tien-loi-vua-tiet-kiem-dien-tich-103-k.aspx